I. 서 론
II. 확산체와 축소모형 홀
2.1 확산체
2.2 축소모형 홀
III. 측 정
3.1 축소모형의 측정
3.2 시뮬레이션 피팅
3.3 실내음향 평가지표
3.4 확산체 부착위치의 선정
3.5 측정 결과
IV. 부착위치별 확산체의 영향
4.1 발코니 전면부 (BF)
4.2 천장 반사판면 (CR)
4.3 측벽 반사면 (W1, W2, Wall)
V. 결 론
I. 서 론
홀의 음향은 적정한 비율을 갖는 공간 형상과 규모 (좌석수), 효과적인 반사면의 설계, 표면재질의 음향성능, 확산체 등 다양한 설계요소에 의해 결정된다 [1]. 그 중 확산체 설계는 내부 장식이라는 시각적 목적뿐만 아니라, 실내 음장의 고른 분포와 음향 장애요소를 제거하는 역할을 하기 때문에 홀 음질 향상에 주요한 기여 인자로 알려져 있다 [2,3]. 확산현상에 대한 현재까지의 연구는 확산 알고리즘의 개발, 확산률의 정의 및 확산체의 설계 등 확산체 시료를 중심으로 진행되어 왔다 [1,4]. 이에 따라 확산체 시료에 대해 잔향실에서 확산계수를 측정하는 방법론이 ISO를 통해 확립되었다 [5-7].
한편, 확산체의 실제 음장변화에 미치는 영향에 대한 연구는 최근에 들어와서야 축소모형을 이용하여 시작되었다. 2000년 Suzumura 등 [8]은 1:10 축소 모형 홀에서 IACC와 Δt1을 이용하여 원형기둥의 확산효과를 평가하였다. 2004년 Chiles [9]는 1:25 축소모형에서 4가지 확산패널을 적용한 실험을 통하여, 감쇠곡선의 선형화, 잔향시간 평균 및 편차의 감소, EDT/RT비 증가를 확산체의 효과로 제시했다. 2005년 전진용 등 [10]은 1:10 축소모형 실험에서 Δt1의 지연, 음압과 잔향시간의 감소, 주관적 선호도의 증가를 확산체의 영향으로 보고 하였다. 최근 다양한 축소모형을 활용하여 반구 확산체의 적용 부위에 따른 음장변화를 평가하는 연구도 수행되었다 [11]. 그러나 이러한 최근 연구에도 불구하고, 확산체의 효과적인 설치 위치나 이 영향을 미치는 객석 위치에 대해서는 거의 연구되지 않았고, 나아가 잔향실에서 측정한 난입사에 의한 확산체의 확산 계수와 음장 변화와의 관계에 대해서는 아직까지 명확히 밝혀진 바가 없다.
따라서 본 연구에서는 600석 규모의 홀을 1:25 축소모형으로 제작하여 확산체 설치위치에 따른 음질의 변화를 실내음향 측정을 통해 평가하였다. 확산체 설치에 따른 음장의 변화는 일반적인 실내음향지표인 잔향시간, 초기감쇠시간, 명료도, 음압레벨, 초기반사음지연시간과 더불어 임펄스 리스펀스의 자기상관함수로부터 계산되는 Temporal Diffusion을 이용하여 평가하였다. 또한 실험실에서 측정한 확산체의 확산계수와 설치량과 관련하여 현장 확산도를 제안하였다. 축소모형을 통한 음향예측은 컴퓨터 시뮬레이션에서 갖는 한계점을 보완하여 직접 모형의 제작 및 설치를 통해 그 음향적인 효과를 평가할 수 있는 장점이 있다 [12-14].
II. 확산체와 축소모형 홀
2.1 확산체
본 연구에서 사용된 반구확산체의 성능은 이전 연구 [5-7]를 통해 ISO 17497-1에 규정되어 있는 잔향실에서 난입사 측정방법론 [6]에 따라 확산계수 (scattering coefficient,
)를 측정하여 평가하였다. 확산계수는 비경면 반사음과 전체 반사음의 에너지의 비로 정의할 수 있으며, 흡음률 측정법 [15]에 기반하여 경면반사 방향의 음에너지로부터 확산된 음에너지의 양을 회전판에서의 반복측정을 통해 평가한다.
반구확산체의 단일수치 확산계수는 이전 연구결과 [7,16]에 따라 500 Hz에서 3,150 Hz까지의 주파수대역별 평균값을 사용하였다. 평균 확산계수는 그림 1의 (a)에서와 같이 반구의 높이가 200 mm (1:25 축척에서 7.5 mm)내외에서 가장 높은 값을 나타냈으며, 그림 1의 (b)에서와 같이 점유비율이 50 %에서 60 %일 때 가장 높은 값을 나타냈다. 따라서 본 연구에서는 중주파수대역에서 높은 확산효과를 유도하기 위해 1/25축척의 축소모형 벽체에 높이 7.5 mm의 반구확산체를 50 %의 밀도로 설치하였다.
2.2 축소모형 홀
1930년대부터 시작된 축소모형 모델링은 확산 및 회절현상을 고려한 자연음의 거동을 반영하기 때문에 현재까지도 공연장의 음향평가를 위해 많이 사용되고 있다. 본 연구에서는 1:25 축척의 홀 모형이 사용되었다. 2000년에 Barron [17]은 1:25 축척에서 객석의자의 흡음률 재현에 대해 연구하였으며, Jeon과 Barron [17]은 2005년 1:25 축척의 무대모형을 통해 무대음향지표를 측정하였다. Chiles [9] 역시 홀 확산음장을 평가를 위해 1:25 축척의 모형을 이용하였다. 1:25 축척의 모형은 1:10 축척에 비해 모형의 크기가 크지 않아 제작이 용이하고 제작비가 저렴하며, 1:50 축척에 비해 높은 주파수대역의 측정이 가능 (인터페이서의 샘플링율이 192 kHz일 때 2 kHz까지 측정 가능)하므로 음장 내에서 재료 표면의 텍스쳐 변화인 확산표면의 영향을 반영할 수 있는 최소 축척이 된다. 그러나 마이크로폰 크기의 제약 (1/8″micro-phone)으로 Binaural recording 이 가능한 모형 더미헤드를 적용할 수 없는 단점이 있다.
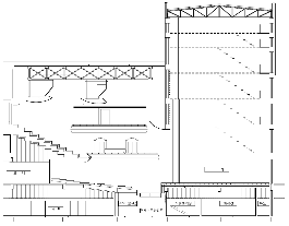
|
그림 2. 대상 홀의 단면도 Fig. 2. Section of the scale model hall. |
대상 홀은 600석 규모의 슈박스 (shoebox)형 다목적 공연장이며, 무대부를 포함한 객석부 용적은 약 5,000 m3이고, 그림 2와 같이 2개 층의 중앙객석과 측벽의 발코니석이 설치되어있다. 축소모형은 오케스트라 쉘과 천장반사판을 포함하여 제작되었으며, 상사의 법칙에 따른 각 부재 흡음률을 고려하여 모형재료를 선정하였다. 재료의 흡음률은 ISO 354에 따라 1/10 축소 잔향실에서 전기 스파크 음원과 1/8″마이크를 이용하여 측정하였다 [17,18].
본 연구에서의 확산체에 의한 음장 측정은 중주파수 대역의 음향지표만을 대상으로 하였고, 이에 따라 축소모형의 재료는 중주파수 대역의 흡음률 특성이 실제와 최대한 유사하도록 표 1과 같이 선정하였다. 축소모형의 주요 구조체는 콘크리트의 낮은 흡음률을 재현하기 위해 발포폴리스티렌보드, 라이싱보드와 하드보드를 밀착하여 밑판을 단단하게 만들고 표면에 흰색 에나멜 페인트를 2회 도장하였다. 또한 그 위에 반구확산체를 50 %의 점유비율로 설치하여 흡음율을 측정하였으며, 그 결과 중주파 대역에서 흡음률이 약 0.25 정도 증가하였다. 만석 상태를 재현하기 위해 철제 의자틀, 발포폴리스티렌 관객모형과 흡음천을 이용하여 객석 의자를 제작하고 흡음률을 측정하였다 [19,20]. 그 결과, 목표로 한 실물 축척의 만석시 의자의 흡음율과 비교하여 유사한 흡음률을 재현하였다. 그림 3은 제작 완료된 축소 모형의 내부 모습이다.
|
그림 3. 제작 완료된 축소모형 홀의 내부 Fig. 3. Inside of the scale model hall. |
III. 측 정
3.1 축소모형의 측정
축소모형의 측정은 무대 위에 오케스트라 쉘을 설치한 콘서트 모드 상태에서 진행하였으며, 각 수음점에서 녹음한 임펄스 리스펀스로부터 음향 지표를 도출하였다. 음원으로 무대 선단 중앙에서 1 m 뒤로 떨어진 지점에 고압전기 스파크 소스를 설치하였으며, 1/8” 마이크로폰 (B&K)을 이용하여 1, 2층 객석 46지점과, 음원에서 1 m 떨어진 곳 (축소모형에서는 4 cm)에 음압레벨 보정을 위한 레퍼런스 1/8” 마이크로폰을 설치하여 동시에 수음하였다. 측정 시 고려된 음원 및 수음점의 위치는 그림 4와 같다.
(a) 1F (25개 지점) (a) 1F (25 points) |
|
(b) 2F (18개 지점, 3F 발코니 제외) (b) 2F (18 points, except for 3F balcony) |
|
(c) 2F 발코니 (3개 지점) (c) 2F balcony (3 points) |
그림 4. 음원과 수음점의 위치 Fig. 4. Source and receiver positions. |
3.2 시뮬레이션 피팅
축소모형 홀의 음향지표의 유효성을 비교하기 위해 동일한 치수와 흡음률, 확산율 자료로 컴퓨터 모델링하여 음향 시뮬레이션 프로그램으로 음향지표를 예측하였다. 그 결과, 만석시 잔향시간이 중주파 대역 (500에서 1,000 Hz 평균)에서 1.37 s로 예측되었고, 축소모형 측정 결과 1.33 s로 유사한 수치를 보이는 것을 알 수 있다. 그림 5는 축소모형과 시뮬레이션 모델의 주파수 대역별 잔향시간을 비교한 결과이다.
|
그림 5. 축소모형과 시뮬레이션의 주파수대역별 잔향시간 비교 Fig. 5. Comparison of reverberation times of the scale model with computer simulation model. |
3.3 실내음향 평가지표
본 연구에서는 일반적으로 많이 사용되는 잔향시간 및 음악명료도 등의 실내음향지표를 이용하여 객석의 음향성능을 평가하였다. 본 연구에서 사용한 각 평가지표의 정의는 표 2와 같다. ISO 3382-1 [20]에 정의되어 있는 RT, EDT, C80 등에 추가하여 본 연구에서는 확산의 영향을 다각도로 평가하기 위해 임펄스 리스펀스의 자기상관함수 (Autocorrelation function, ACF)로부터 계산되는 Temporal diffusion (TD) [21]을 이용하여 음장을 평가하였다. TD은 식 (1)과 같이 ACF의 기준점에서 첫번째 피크의 진폭 (
)과 두 번째 최대 피크의 진폭 (
)의 비율로서, 개념적으로는 일차반사음이 유효반사면에 의해 얼마나 많이 변형되었는지를 나타낸다. (TD에 대한 설명은 참고문헌 [22, 23] 참조)
TD =
/
(1)
3.4 확산체 부착위치의 선정
확산면과 비확산면의 구분을 위해 표 1의 벽체부 재료와 같이 동일한 크기의 반구확산체를 일정한 점유비율로 부착하였다. 확산체 부착 위치는 그림 6과 같이 크게 측벽 (Lateral wall, W), 발코니전면 (Balcony front, BF), 천장반사판 (Ceiling reflector, CR)의 세 부분으로 구분하였으며, 측벽은 다시 발코니 오버행의 유무에 따라 상부 오버행이 없는 프로세니엄쪽 측벽 (W1), W1에 오버행지점을 포함한 측벽 (W2)과 측벽 전체 (Wall)의 세 구역으로 재구분하였다. 확산체 부착위치의 조합에 따라 확산체를 부착하지 않는 경우 (No diffuser, NO)를 포함하여 다음과 같이 8가지 케이스에서 측정을 진행하였다.
|
그림 6. 확산체 설치를 위한 구역 구분 Fig. 6. Region division for diffuser installation. |
1) NO: 확산체를 부착하지 않은 경우
2) BF: 발코니 전면에만 확산체를 부착한 경우
3) W1: 객석 측벽에만 확산체를 부착한 경우 (발코니 오버행 아래지점 제외)
4) W2: 객석 측벽에만 확산체를 부착한 경우 (발코니 오버행 아래지점 포함)
5) Wall: 측벽 전체에 확산체를 부착한 경우
6) CR: 천장반사판에만 확산체를 부착한 경우
7) CR+W1: 천장반사판과 발코니 오버행 아래지점을 제외한 무대쪽 측벽에만 확산체를 부착한 경우
8) BF+Wall: 발코니 전면과 측벽 전체에 확산체를 부착한 경우
3.5 측정 결과
각 측정 케이스별로 설치된 확산체의 개수가 달랐기 때문에 이에 대한 정량적인 표현을 위해 중주파수대역 (500에서 1,000 Hz)에서의 실내총흡음력 (AT)과 실내총확산력 (ST)을 계산하였다. 식 (2)와 같이 각 표면의 면적과 잔향실에서 측정한 확산체 부착판의 중주파수대역 평균 흡음율을 곱하여 총흡음력을 계산하였고, 마찬가지 방법으로 식 (3)과 같이 각 표면의 면적과 확산계수를 곱하여 총확산력을 계산하였다.
AT = ∑
[m2] (2)
ST = ∑
[m2] (3)
(여기서
: 각 표면의 면적,
: 흡음율,
:확산계수)
표 3은 각 측정케이스에 따른 총흡음력과 총확산력 그리고 각 실내음향 지표의 평균값을 나타낸다. 확산체 설치량의 증가에 따라 총흡음력과 총확산력은 선형적으로 증가하였으며 (R = 0.97), 확산력과 흡음력의 거동은 거의 동일한 것으로 나타났다 (R = 1.00). 각 실내음향 지표는 각 측정케이스에서 중주파수대역의 측정값을 전 측정지점 (46개)에서 평균하였다. 확산체를 추가로 설치하지 않은 축소모형 홀의 평균잔향시간은 1.33 s이고, 평균초기감쇠시간은 1.25 s로써 초기음의 감쇠가 빨리 진행되는 일반적인 감쇠형상을 보였다. 명료도는 0.3 dB로써 콘서트홀로서 적정한 초기음과 후기음 비율을 갖는 것으로 나타났으며, △t1은 31 ms로 직접음이 적절히 강화되는 것을 알 수 있다. TD은 6.05로서 이 수치는 홀 형상자체에 의한 직접음 성분대비 반사음의 평균 변형정도를 나타낸다고 할 수 있다.
각 음향지표별 확산체의 영향을 살펴보기 위해 그림 7과 같이 확산체 설치량에 따른 음향지표의 분포를 평균과 최대/최소값을 표시하여 나타내었다.
1) 잔향시간 (RT)과 초기감쇠시간 (EDT)
RT는 그림 7의 (a)와 같이 총확산력의 증가에 따라 감소하는 경향을 나타냈으며 (R2 = 0.89), 100 m2의 확산력 증가에 따라 약 0.09 s의 잔향시간이 감소하는 것으로 나타났다. 반면 EDT는 그림 7의 (b)에서와 같이 발코니 전면 (BF)에 확산체가 설치된 두 케이스 (BF, BF+Wall)에서는 0.05 s 이상 감소하지만, 다른 측정 케이스에서는 확산체가 없었을 때와 비교하여 평균 초기감쇠시간이 크게 변화가 없는 것으로 나타났다. 초기감쇠시간이 고려하는 시간대역은 대개 초기 100 ms에서 200 ms이내이기 때문에, 확산체의 설치는 흡음력의 증가에도 불구하고, 100 ms에서 200 ms까지의 초기반사음에는 큰 영향을 주지 않고, 이후의 후기음에너지를 감소시키는 것을 알 수 있다. 다만 발코니 전면부에 설치된 확산체는 이런 초기반사음도 감소시키는 역할을 하는 것을 알 수 있다.
한편, 잔향시간과 초기감쇠시간 모두 1층 객석보다 2층 객석에서 평균 0.09 s (RT)에서 1.11 s (EDT)정도 높은 것을 알 수 있다. 이것은 1층에서 발코니 오버행 (overhang, 발코니에 의해 상부가 가려진 지점) 위치가 2층에서보다 상대적으로 많아서 잔향이 많이 생기지 못했고, 2층 객석은 가까이 설치된 천장반사판의 열린 부분에 의해 천장상부가 잔향챔버 역할을 했기 때문인 것으로 사료된다.
2) 음악명료도 (C80)
그림 7의 (c)는 총확산력의 증가에 따른 C80의 분포를 나타낸다. 80 ms를 기준으로 하는 초기-후기음에너지비율 (Early-to-late energy ratio)인 C80은 확산체 설치량이 증가해도 그 평균값이 거의 변하지 않았다 (1 dB 이내의 차이). 앞서 확산체 설치량과 잔향시간이 높은 상관도로 감소하는 것을 고려해봤을 때, 확산체는 비록 감쇠곡선 상의 후기반사음들은 감소시키지만 전체적인 초기음과 후기음의 비율에는 영향을 주지 않는다는 것을 알 수 있다.
한편, 측벽에 확산체가 설치된 경우 (W1, Wall, BF+ Wall)에서는 확산체를 설치하지 않은 경우 (NO)와 비교하여 상대적으로 C80의 분포 범위가 작아지는 것을 알 수 있다. (NO: 8.3 dB, W1: 5.5 dB, Wall: 5.0 dB, BF+Wall: 5.4 dB) 천장반사판에만 확산체를 설치한 경우에도 좌석별 C80는 상대적으로 고르게 나타나지만 (CR: 5.8 dB), 프로세니엄 쪽 측벽과 천장반사판에 동시에 확산체를 설치한 경우에는 오히려 분포 범위가 넓어진 것으로 나타났다 (CR+W1: 7.5 dB). 이것은 무대와 가까운 객석 전면부의 경우 천장반사판과 프로세니엄쪽 측벽의 반사면에 의해 강하게 영향을 받아 확산체 과다설치 시 후기음이 많이 감소되기 때문인 것으로 사료된다.
3) 음압레벨 (G)
그림 7의 (d)는 총확산력의 증가에 따른 G의 분포를 나타낸다. 일반적으로 잔향시간과 음압에너지는 확산체 설치량의 증가에 따라 감소한다고 알려져 있다. 잔향시간은 앞서 논의된 바와 같이 강한 상관관계로 감소하는 경향을 보이지만 음압레벨을 그렇지 않은 것으로 나타났다. 측정 케이스에 따른 평균 음압레벨의 감소량은 0.5 dB에서 1.6 dB 사이였으며, 총확산력의 증가와는 낮은 상관관계를 보였다 (R2 = 0.09).
또한 음압레벨의 좌석별 분포도 확산체를 설치했다고 고르게 나타나지 않고 오히려 좌석별 표준편차가 증가하는 것으로 나타났다 (NO: 2.6 dB, BF: 2.5 dB, 다른 측정 케이스들: 2.7 dB에서 3.1 dB). 이것은 EDT에서 논의된 바와 같이 확산체의 설치가 음압레벨의 산정에 주요한 부분인 초기음에너지에는 큰 영향을 주지 않았고, 주요 반사음들이 감쇠되는 것보다는 반사경로가 바뀌는 현상이 주로 발생했기 때문인 것으로 사료된다.
4) 초기반사음지연시간 (Δt1)
본 연구에서는 Δt1을 직접음 이후 최초 반사음이 아니라 최대음압의 일차반사음과의 시간차로 정의하였다. 가장 먼저 도달하지는 않더라도 가장 크게 도달하는 반사음이 더 큰 청감적인 영향을 보이리라 사료되었기 때문이다. 그러나 그림 7의 (e)에서와 같이 총확산력 증가에 따른 Δt1의 영향은 관측되지 않았다 (R2 = 00). 이것은 확산체의 설치가 공연장 형태의 변화를 가져온 것은 아니기 때문에 평균 Δt1은 크게 바뀌지 않았던 것으로 사료된다.
다만 그림 8과 같이 확산체 설치로 인해 반사음선의 증가와 주요 반사경로의 재배치가 이뤄지는 것을 알 수 있었다. 반사음선의 증가는 음향 장애를 일으킬 수 있는 강한 반사음을 부드럽게 만드는 역할을 할 수 있다. 또한 확산체의 돌출과 반사표면적의 증가로 인한 반사경로의 재배치는 앞서 음압레벨 부분에서 논의된 바와 같이 확산체의 설치가 강한 반사음들을 없애는 것이 아니라 반사 경로들을 바꾸는 것이기 때문에 주요한 음압의 손실은 없는 것으로 사료된다.
5) 시간중심 (Ts)
그림 7의 (f)에서와 같이 Ts는 100 ms 내외로 분포하는 것을 알 수 있다. Ts는 총확산력의 증가에 따라 약간 감소하는 경향을 보였다. 이것으로 인해 확산체 설치 후에도 초기음에너지는 후기음에 비해 거의 감소하지 않고, 오히려 초기음쪽에 에너지 비율이 약간이나마 증가한다는 것을 알 수 있다.
천장반사판에 확산체를 부착한 경우 (CR)에 있어서 평균시간 중심이 확산체 미부착한 경우 (NO)에 비해서 변화가 없는데, 이것은 1층부에서의 시간중심 감소 (NO1F: 91 ms, CR1F: 89 ms)에도 불구하고 2층부에서 시간중심이 증가 (NO2F: 109 ms, CR2F: 112 ms)했기 때문이다. 따라서 천장반사판의 확산체 설치는 2층부의 초기반사음 전달을 저해시킬 수 있다고 사료된다.
6) Temporal diffusion (TD)
TD과 주관적 반응의 연관성은 아직 연구된 바는 없으나, 그림 9의 측정결과와 같이 측정지점별로 최소 3.7에서 8.3까지 다양하게 분포하는 것을 알 수 있다. 그러나 각 측정케이스에 따른 평균 TD값을 고려했을 때는 6.05에서 6.30의 변화를 보이는 것을 알 수 있다. 평균 TD이 0.2이상 상승한 것은 천장반사판에만 확산체를 부착한 경우 (CR), 무대와 가까운 프로세니엄 측벽에만 확산체를 설치한 경우 (W1, W2)이다. 이것은 ACF의 두 번째 피크에 해당하는 반사음이 주로 무대와 가까운 프로세니엄쪽 측벽과 천장반사판이기 때문에 이 부분의 확산체가 주요하게 감쇠양상을 변화시켜 결과적으로 평균 TD값을 증가시킨 것으로 사료된다.
|
그림 9. 확산체 설치에 따른 TD의 분포(●: 평균값, 상부 ―: 최대값, 하부 ―: 최소값) Fig. 9.Distribution of TD according to diffusion power (●: mean, upper ―: maximum, lower ―: mini-mum). |
비록 TD의 좌석별 변화범위인 2.2~4.5에 비하면 확산체 설치에 따른 최대 0.25의 변화는 크지 않아 보이지만, 리모델링의 관점에서 홀의 형상을 바꾸지 않고도 확산체 설치로 인해 목적하는 바를 달성할 수도 있기 때문에 TD의 임계값과 최소인지한계에 대한 추가적인 연구가 필요하다. 표 4는 TD의 확산도 평가의 적절성을 위한 다른 실내음향 지표들과의 상관관계를 나타내며, 결과적으로 EDT와 유의한 양의 상관관계를 갖는 것으로 나타났다. 이것으로 EDT가 고려하는 초기반사음들과 TD에서 고려하는 두 번째 ACF의 피크가 유사한 공통점을 가지고 있음을 짐작할 수 있다.
표 4. TD과 다른 실내음향 지표와의 상관계수 (* p<0.05) Table 4. Correlation coefficients of TD with other room acoustical parameters (* p<0.05). | ||||||
상관계수 | RT | EDT | C80 | G | Δt1 | Ts |
TD | 0.17 | 0.73* | -0.08 | -0.68 | 0.21 | 0.15 |
IV. 부착위치별 확산체의 영향
공연장 음향설계에 있어서 적절한 음향적 처치를 위한 가이드라인의 구축은 산업적 측면뿐만 아니라 학술적 측면에서도 중요한 작업이다. 본 장에서는 이전 III장에서 논의된 각 지표별 확산체의 영향을 토대로 확산체 부착 위치별로 그 영향요소에 대해 조사하였다. 여기에서 Δ로 표시하는 실내음향 지표의 변화량은 확산체 미부착시의 측정결과와 비교하여 특정 부위에 확산체를 설치하였을 때 각 지표가 변화한 양을 의미한다.
4.1 발코니 전면부 (BF)
발코니 전면부는 무대 쪽으로 되돌아가는 반사음을 차단하고 발코니 하부로 반사음이 유입될 수 있도록 대개 흡음이나 확산처리를 하고 있다. 이런 확산 및 흡음 처리는 관념적인 필요성에 의해 설계되고 있지만 실제 그 영향에 대한 연구는 부족하다. 앞서 음향지표별로 논의된 바를 정리하면, 발코니 전면부의 확산체는 확산체 설치량에 따라 흡음력과 확산력이 동시에 증가하며, 잔향시간은 이에 따라 감소하는 것으로 나타났다.
발코니 전면부 확산체의 긍정적인 효과로는 C80의 증가 (0.3 dB)와 Ts의 감소 (-3 ms)를 들 수 있으나, RT의 감소량 (-0.03 s)에 비해 EDT의 감소량 (-0.05 s)이 커서 특히 1층부 (EDT 감소량: -0.08 s)에서 잔향감이 약해질 우려가 있다. 또한 1층부의 발코니에 가려지지 않는 지점에서 TD은 크게 증가하지만 (0.18), 2층부의 TD은 감소하기 때문에 (-0.06) 2층의 TD을 향상시키기 위해서는 다른 음향적 처치가 필요하다.
4.2 천장 반사판면 (CR)
천장 반사판은 거리에 따라 감쇠하여 전달되는 음압을 보강하고, 측벽과 멀리 떨어진 지점에서 짧은 지연시간의 초기반사음을 제공하는 역할을 한다. 따라서 천장반사판의 표면은 객석 쪽으로 볼록한 형태를 하여 확산반사를 유도하는 것이 좋다고 한다. 확산체를 천장반사판에 부착한 것은 동일한 맥락으로 간주할 수 있으며, 이에 따라 잔향시간은 약간 감소하고 있다. 평균적으로 100 m2의 확산력 증가에 따라 약 0.09 s의 RT가 감소했지만, 천장반사판의 경우에는 59 m2의 확산력 증가에도 0.03 s의 RT만이 감소했기 때문이다.
천장반사판에 부착하는 확산체는 그림 7에서 보이듯이 RT를 제외하고는 확산체 미부착인 경우와 비교하여 각 실내음향 지표의 평균값이 크게 변하지 않았다 (ΔEDT: 0 s, ΔC80: 0 dB, ΔG: -0.6 dB, Δ (Δt1): 8 ms, ΔTs: 0 ms). 하지만 그림 10과 같이 ΔG과 ΔEDT의 측정위치별 분포를 살펴보면, 음압레벨의 경우 1층 측벽쪽 무대 앞 에서는 1~2 dB 정도 증가한 반면 무대로부터 거리가 멀어짐에 따라 음압레벨이 1~3 dB 정도 감소하며, 2층 중앙부의 경우에는 최고 5 dB까지도 감소하는 것으로 나타났다. 또한 초기감쇠시간의 경우에는 반대로 1층 전면부에서 0.1~0.2 s 정도 감소하며 2층 중앙부에서는 오히려 0.1 s 정도 증가하는 것으로 나타났다.
따라서 천장반사판의 확산체는 2층부 중앙의 초기감쇠음이 부족한 경우 도움이 될 수 있지만, 같은 지점에서 음압레벨을 크게 감소시킬 수 있기 때문에 2층부에도 충분한 음압레벨이 확보된 경우에 사용을 권장할 수 있다. 1층부에서는 음압레벨이 증가된 지점보다는 감소한 지점이 많고, 초기감쇠음도 작아지기 때문에 확산체의 천장반사판 부착을 지양하는 것이 좋다.
|
|
(a) G | (b) EDT |
그림 10. 천장반사판에 확산체 설치로 인한 G 변화량과 EDT 변화량의 분포 (Δ = CR-NO) Fig. 10. Distribution of ΔG and ΔEDT by ceiling reflectors diffusers (Δ = CR-NO). | |
4.3 측벽 반사면 (W1, W2, Wall)
측벽의 반사면은 공연장의 음향설계시 가장 중요한 부분이다. 초기 계획단계에서 공연장의 평면은 측벽의 퍼진 각도, 측벽간 평균 거리, 길이와 폭의 치수비 등 다각적으로 검토된다. 본 연구에서 사용된 프로세니엄 아치가 설치된 직사각형 평면의 공연장은 19세기부터 콘서트홀 등의 전형적인 형태로서 자리를 잡았다. 직사각형 평면에서 빈번히 지적되는 대향벽 요소는 에코 및 음색의 변형 등 많은 음향적 결함을 내포하고 있다고 알려져 있다. 하지만 고전적인 공연장들은 확산유발 형상의 예술조각으로 표면마감을 하고 있어 좋은 소리를 형성하고 있기 때문에 측벽의 확산체 설치에 대한 정량적인 연구는 가장 실제적으로 적용할 수 있는 분야라 할 수 있다.
본 실험결과, 측벽면 확산체에 따라 평균 RT가 감소하였고, 평균 G도 감소하는 것으로 나타났다. 하지만 W1과 W2의 경우 평균 EDT는 거의 변화가 없었으며, C80의 좌석별 분포범위가 작아지는 것을 알 수 있었다. 다만 측벽 전체에 확산체를 설치할 경우 (Wall)에는 EDT값이 0.03 s정도 감소하였지만, W2와 비교하여 확산체가 더 설치되었음에도 불구하고 오히려 평균 G값이 1.1 dB 증가한 것을 알 수 있다. 이것의 원인은 본 연구에서 사용된 홀에서 무대와 가까운 측벽의 확산체는 초기에너지 감소를 초래하여 객석부의 음압레벨을 감소시키는데 반해, 후벽에 가까운 측벽의 확산체는 객석후열에서 무대 쪽으로 전파되는 역방향 반사음선을 형성하여 무대 쪽에 가까운 측정지점에서 음압레벨을 보완했던 것으로 사료된다.
그림 11은 측벽 부위별 확산체를 설치하였을 때 Δ (Δt1)의 분포를 나타낸다. 프로세니엄 쪽에 부착된 확산체로 인해 1층 무대 쪽 중앙에서 일차반사음들이 20-30 ms 정도 지연되는 것을 알 수 있으며, 1층 후열쪽 중앙에서는 오히려 일차반사음들이 20-30 ms 정도 앞당겨 지는 것을 알 수 있다. 2층 중앙에서는 1층 중앙부와 반대의 경향이 나타났고, 2층 측벽 쪽에서는 50 ms 이상 일차반사음이 지연되는 것이 나타났다. 이것으로 확산체 부착에 따른 일차반사음의 방향전환 및 재배치가 활발히 이뤄지고 있는 것을 확인할 수 있으며, 아울러 객석부 특정 위치에서 일관적으로 음향지표가 변하고 있음을 알 수 있다.
| ||
(a) W1 (Δ = W1-NO) | (b) W2 (Δ = W2-NO) | (c) Wall (Δ = Wall-NO) |
그림 11. 측벽 확산체 설치로 인한 Δt1의 변화량 분포 Fig. 11. Distribution of Δ (Δt1) by lateral wall diffusers. | ||
후벽에 가까운 측벽의 확산체만의 효과를 검증하기 위해 3.2장에서 언급한 컴퓨터 시뮬레이션 모델을 이용하였다. Wall과 W2의 겹치지 않는 부분을 W3로 정의하였다. 시뮬레이션에서 확산체의 변화에 따른 확산계수 입력치는 0.1 (확산체 없을 때)과 0.6 (확산체 있을 때)으로 설정하였다. 확산체가 설치되지 않은 경우 (NO)는 측벽의 확산계수가 모두 0.1로 입력되었고, 후벽에 가까운 측벽만 확산체가 설치된 경우 (W3)는 그 부위의 확산계수만 0.6로 입력하였다. 그 결과, 확산체 없는 경우 (NO)와 비교하여 W3의 음압 (G)은 객석 전체에서 0.19 dB이 증가하였다. 이것은 축소모형에서의 결과인 Wall과 W2를 비교하여 추정할 수 있는 W3에 의한 음압의 증가량인 1.1 dB와 비교하여 작은 수치이지만, 통계적으로 T-test를 이용해 비교하였을 때 유의수준 95 %에서 유의한 차이를 보이고 있고, 후벽에 가까운 측벽의 경우 확산체를 설치하였을 때 음압이 증가됨을 동일하게 나타나고 있다. 특히, 1층 수음점의 음압만을 평균했을 경우, 0.23 dB이 증가하는 것으로 나타나 무대와 가까운 객석에도 후벽에서의 반사음이 증가한 것으로 나타났다. 따라서 측벽면의 확산체는 초기반사음들과 주로 연관되어 있으며, 객석 후열부에 부착하는 확산체를 이용하여 무대 쪽 확산체에 의해 감소한 음압과 초기감쇠음을 보상할 수 있으리라 사료된다.
V. 결 론
현재 확산계수는 실험실에서 원형으로 가공 배치된 시험체, 그중에서도 원판의 중앙에 대해 대칭이어야 하고, 주기성을 갖는 배치를 가지고 있는 확산체에 대해서만 평가할 수 있는 한계가 있다 [5]. 그러나 실제 공연장의 표면은 단순한 패턴으로 구성되어 있지 않고, 복잡한 형상의 조합으로 구성되어 있기 때문에, 실내 현장의 확산도를 평가할 수 있는 지표를 개발하여 설계 및 음향 예측에 적용할 수 있어야 한다. Haan과 Fricke는 공연장의 표면확산도 (Surface diffusivity index, SDI)를 전문가의 육안으로 판단하여 주관적인 확산도를 제안하였다 [24]. 그러나 이런 방식은 평가자의 전문성과 숙련성에 크게 의존하기 때문에 설계방법론으로 일반화하기에는 한계가 있다.
따라서 본 연구에서는 여섯 가지 실내음향 지표 (RT, EDT, C80, LL, Δt1, Ts)와 ACF로부터 구한 Temporal diffusion으로 확산체 설치에 따른 실내음장의 변화를 측정하였다. 각 표면의 확산계수와 면적으로부터 계산한 총확산력은 결국 실내의 흡음력과 거의 유사한 모습을 보였다. 따라서 높은 확산계수의 확산체를 사용하는 것은 실내 평균흡음율을 증가시킨다는 것을 의미하며, 이것은 확산체 설치로 인해 잔향이 감소하는 역효과를 유발할 수 있다. 확산체 설치량에 따라 민감하게 변화한 지표는 잔향시간 (R = -0.94)과 시간중심 (R = -0.76)이었으며, 그 다음으로는 음악명료도 (R = 0.56)와 초기감쇠시간 (R = -0.55)이었다. 음압레벨 (R = -0.30), Temporal diffusion (R = -0.19), Δt1 (R = 0.01)은 거의 관계없는 것으로 나타났다.
본 연구에서는 1:25 축척의 제한으로 모형 더미헤드에 의한 공간감 지표를 측정하지 못하였다. 마찬가지 이유로 확산체 설치에 따른 확산음의 청감평가도 진행할 수 없었다. 현장확산도는 관객이 공간에서 확산체 설치로 인해 더 좋은 소리로 인지할 수 있는 방향으로 제안되어야 하기 때문에, 향후 보다 큰 축척에서의 측정과 청감평가를 통해 제안되어야 할 것이다.





















